抽气室
发布时间:2018-08-03 16:03����� �������Ƴ������������ �������Ƴ����������� �������Ƴ������������ �������Ƴ������� | 作者: 气力输送 | 来源����� �������Ƴ������������ �������Ƴ������������ �������Ƴ������������ �������Ƴ�������: 未知
抽气室
抽气室是针对在
粉体输送系统中,
旋转供料器传送粉状
物料保持正常下落的的设备。
引持环保所生产的抽气室具有价格便宜,可靠性高,与
引持环保所生产
旋转供料器配套简便,安装灵活等特点

对于堆积密度小的物料,尤����� �������Ƴ������������ �������Ƴ������������ �������Ƴ������������ �������Ƴ�������其是粉料,对旋转供料器增加抽气室是����� �������Ƴ������������ �������Ƴ������������ �������Ƴ������������ �������Ƴ�������为了保证物料正常下落,将气体排走不����� �������Ƴ������������ �������Ƴ������������ �������Ƴ������������ �������Ƴ�������影响正常输送而设置的。
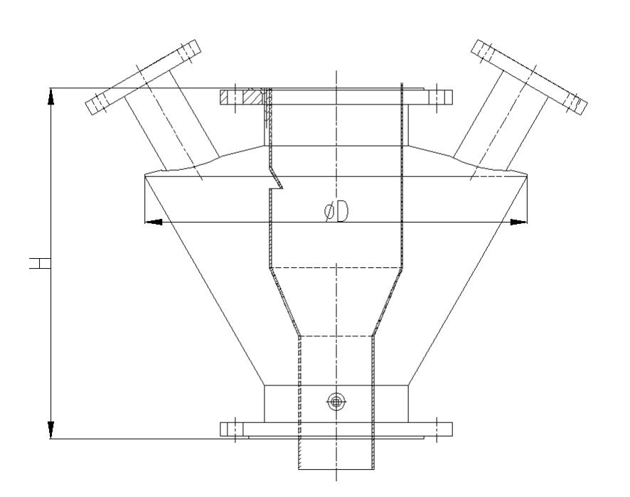
抽气室图纸

抽气室选型
抽气室选型表
|
尺寸/型号 |
YC15/30 |
YC50 |
YC70 |
YC120 |
YC220/300����� �������Ƴ������������ �������Ƴ����������� �������Ƴ������������ �������Ƴ������� |
YC400 |
YC600 |
YC800 |
|
全高 H(mm) |
380 |
446 |
520 |
590 |
670 |
815 |
890 |
1030 |
|
筒径 D(mm) |
φ400 |
φ472 |
φ560 |
φ660 |
φ760 |
φ920 |
Φ1065 |
Φ1275 |
注:H 为抽气室本体高度,抽气室包括本体、内����� �������Ƴ������������ �������Ƴ������������ �������Ƴ������������ �������Ƴ�������容。